안녕하세요.
화장실 칸막이 큐비클 자재 생산·판매·공사
전문 업체, 대윤 큐비클입니다.
(큐비클 설치 및 맞춤 설계 문의는 언제든 환영합니다!)
오늘의 현장: 양주 불곡산 부근 요양원
오늘의 현장은 경기도 양주시
불곡산 부근에 위치한 요양원입니다.
불곡산은 양주에서 꽤나 유명한 자연 휴양림으로,
쾌적하고 조용한 환경을 제공하여
요양원이나 휴양 시설이
들어서기에 최적인 곳입니다.
공기가 맑고 조용한 요양원 환경에 맞춰,
큐비클 역시 따뜻함과 안전성을
중점으로 시공해야 했습니다.
실측 데이터 분석 및 현장 협의
이번 현장은 20년 가까이 절친 사이로
지내온 건축 담당자분께서 디테일하게
실측 도면을 직접 보내주셨습니다.


오랜 협력 관계 덕분에 현장 상황을
정확히 파악하며 업무 효율을
높일 수 있었습니다.

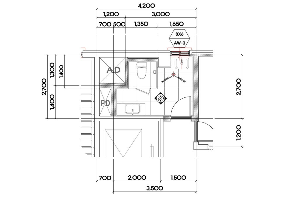
[현장 구조 및 특징]
1층 남자 화장실 (1칸):
원도면과 달리 문 위치가 좌측으로
형성되어 내부 이동 반경이 넓어졌습니다.


문 방향이 밖으로 열리게 설계되어
사용자가 화장실 안에서 더 자유롭게
움직일 수 있습니다.
(요양원처럼 이용에 도움을 받아야
하는 경우에 특히 효율적입니다.)
1층 여자 화장실 (2칸):


‘ㅗ’자 형태의 2칸 구성이며,
일반적인 1000mm 폭보다
넓어 이용 시 편의성이 높습니다.
2층 화장실 (1칸):


‘ㄱ’자 형태의 좁은 1칸. 남자 여자 공용으로
사용되는 곳으로 추정됩니다.
대윤이의 제안: 공간이 너무 좁아
좌측 벽에서 100~150mm 앞으로 큐비클을
설치하면 더 편하지만,
담당자분은 사용량이 많지 않아 도면과
동일하게 진행을 요청했습니다.
(현장 상황에 따른 최종 결정 반영)
[추가 긴급 변수: 장애인 화장실]

원래 자바라(PVC) 문으로 계획했던
1층 장애인 화장실을 큐비클
접이식 문으로 긴급 변경
요청이 들어왔습니다.
정보성: 과거에는 장애인 화장실에
자바라 문을 사용하기도 했으나,
잠금장치 미비, 미관상 문제, 장애인 차별 인식
등의 문제로 현재는 규격에 맞는
접이식(슬라이드식) 큐비클
설치가 필수입니다.
이로 인해 공사 기간이
잠시 연기되었습니다.
디자인 선정: 크림 & 블랙 오크 무광의 따뜻함
색상: 문 – 크림색 (무광) /
포스트 및 간벽 – 블랙 오크 (무광)

높이: 바닥에서 1900mm
(일반적인 표준 높이)
[색상 및 타입의 장점]
크림색 무광의 장점: 요양원처럼 따뜻하고
차분한 분위기가 필요한 곳에
시각적인 안정감을 제공합니다.
문에 적용된 크림색이 블랙 오크의
강렬함을 중화시켜 단조롭지 않고
세련된 조화를 이룹니다.
무광 마감: 차분하고 은은한 느낌을 주어
이용자에게 편안함을 제공하며,
최근 인테리어 트렌드에도 부합합니다.
도면 제작 및 생산 계획
장애인 화장실 접이식 문이 추가된
최종 데이터를 바탕으로
생산 지시 도면을 작성했습니다.

생산 계획: 일반 화장실 큐비클은
생산이 완료된 상태였으며,
장애인 접이식 문(규격 1000mm 이상)
추가 제작을 통해 전체 공사
일정을 재조정했습니다.
주요 당부 사항: 문 방향이 이용자의
편의에 맞도록 설치 전 현장에서 최종적으로
담당자에게 문 방향을 재확인하도록
작업자에게 당부했습니다.
✅ 대윤 큐비클의 책임 설계
저희는 현장 특성(요양원)을 고려하여
안전성을 최우선으로 반영한 도면을 제작하며,
필요시 3D 이미지를 통해 복잡한
장애인 시설 규격까지 정확하게 구현합니다.
베테랑 작업자의 시공
모든 자재 준비가 완료된 후,
베테랑 작업자를 현장에 투입했습니다.
베테랑 작업자는 수천 건의 요양원 및
공공시설 시공 경험을 갖춘 전문가입니다.
특히 이번 현장처럼 접이식 장애인 큐비클과
같이 까다로운 규격이 요구되는 곳에서는
문 오픈 넓이(1000mm 이상)를
정확하게 맞추고,
하드웨어의 미세한 조정까지 완벽하게
처리하는 숙련된 기술이 빛을 발합니다.
완공 후 모습: 따뜻함과 규격의 완성
시공이 완료된 요양원 화장실은
요청된 규격과 디자인 그대로
안전하게 완성되었습니다.
[완공 디테일]


장애인 큐비클: 1000mm 이상 문 오픈 넓이
규격에 맞춰 접이식 문이
깔끔하게 설치되었습니다.
일반 큐비클: 크림색 문이 주변의
밝은 타일과 조화되고,
블랙 오크 간벽이 차분한
무게감을 주었습니다.


마감 퀄리티: 베테랑 작업자답게 모든 칸의
수직 수평이 정확하게 맞았으며,
하드웨어가 정 위치에 견고
하게 고정되었습니다.

[깔끔한 뒤처리] 저 대윤이가 항상 강조하는
“흔적을 남기지 말라”는 원칙에 따라,
모든 잔여물과 먼지까지 깔끔하게
처리되어 청결한 상태로 현장이
마무리되었습니다.
마무리하며
이상으로 양주 불곡산 요양원 화장실 칸막이
큐비클 설치 공사 후기를 마무리하겠습니다.
요양원이라는 특수성만큼 안전과
규격 준수에 최선을 다했던 현장이었습니다.
저희 대윤큐비클은 앞으로도 현장의
작은 부분까지 놓치지 않고,
고객 만족을 위해 정성을 다하겠습니다.
추운 날씨, 건강 유의하시고
다음 현장에서 뵙겠습니다.
감사합니다!
화장실 칸막이 큐비클 전문 – 대윤큐비클 올림